
- Emlak Haberleri

- Yalova

- Marmara Vizyon Evleri Projesinde Kiralar 1000 Lira!
Marmara Vizyon Evleri Projesinde Kiralar 1000 Lira!
Yalova Merkez'deki en yeni konut projeleri hakkında ve emlak sektöründeki son gelişmelere dair haberleri incelemek için tıklayınız.
Marmara Vizyon Yapı'nın Yalova'da inşa ettiği Marmara Vizyon Evleri projesinde kiralar 1000 liradan başlıyor.
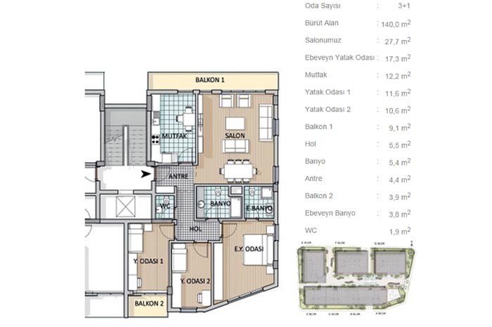
Yalova'nın merkez bölgesinde Marmara Vizyon Yapı tarafından 5 bin 750 metrekarelik alanda 60 konut kapasitesi ile inşa edilen Marmara Vizyon Evleri projesinde büyüklükleri 104 ile 140 metrekare arasında değişen 2 oda 1 salon ve 3 oda 1 salon konut tipi seçenekleri sunuluyor.
MARMARA VİZYON EVLERİ PROJE DETAYLARI
Marmara Vizyon Yapı tarafından Yalova merkezde 5 bin 750 metrekarelik arsa üzerine kurulan Marmara Vizyon Evleri projesi 60 daireden oluşuyor. 7 blok şeklinde planlanan projede 2+1 ve 3+1 daireler yer alıyor. Projedeki 2 oda 1 salon daireler 104 metrekare, 3 oda 1 salon daireler 114 ila 140 metrekare olarak tasarlandı.
Son dönemde Arap yatırımcıların yoğun ilgi gösterdiği Yalova'da hayata geçirilen Marmara Vizyon Evleri, merkezi bir konumda yükseliyor. Kipa AVM ve stadyuma yakın olan proje, az katlı mimariye sahip. Butik konseptli Marmara Vizyon Evleri'nin 3 bin 450 metrekaresi yeşil alanlara ayrıldı. Projede evler hemen teslim durumda. Marmara Vizyon Evleri'nde evlerin kiralık olarak tercih edilmesi durumunda 1.000 TL getiri sağlaması bekleniyor.
HEMEN TESLİM
En düşük ve en yüksek konut fiyatlarının 420 bin lira ile 450 bin lira arasında değiştiği Marmara Vizyon Evleri'nde daireler banka kredisine uygun durumda. Kiraların 1000 liradan başladığı projede daire teslim işlemleri hemen yapılıyor.
MARMARA VİZYON EVLERİ PROJE BİLGİLERİ
Marmara Vizyon Evleri Projesi İletişim Bilgileri :
Adres : Şht. Yaşar Kuş Cad. Merkez/Yalova
Telefon : 0226 814 57 93
Web : www.marmaravizyonyapi.com
E-mail : info@marmaravizyonyapi.com
Marmara Vizyon Evleri Projesi Fotoğrafları :
Marmara Vizyon Evleri Sosyal İmkanları ve Proje Özellikleri :
- Açık otopark
- Fitness merkezi
- Kamelya
- Kapalı otopark
- Merkezi uydu sistemi
- Asansör
- Balkon
- Kombi
- Deprem yönetmeliğine uygun
- Yalıtım yönetmeliğine uygun
- Yapı denetimi yapılmış
- Zemin etüdü yapılmış
Marmara Vizyon Evleri Projesi Kat Planı ve Kroki Görselleri :
HABER İLE İLGİLİ YORUMLAR
GÜNDEM HABERLERİ
SUR YAPI TATİL EVLERİ ANTALTA’DA YENİ DÖNEM 4 MEVSİM TERMAL AYRICALIĞI
Sur Yapı, Antalya’daki yeni nesil devre mülk projesi Sur Yapı Tatil Evleri Antalya’da önemli bir dön
15 April 2026
SEGA YAPI, ATAKENT’İN DEĞER HATTINDA MODERN ŞEHİR HAYATININ SİMGESİ SEGA ATAKENT’İ SATIŞA SUNDU
Sega Yapı, İstanbul’un önemli bir uydu kenti olan, planlı gelişim bölgesi ve geleceğin yaşam merkezi
13 April 2026
POPÜLER HABERLER
Fırat Life Style’dan 990 Bin TL Net Fiyatıyla "Hemen Tapulu", “Erişilebilir Konut” Modeli













