
- Emlak Haberleri

- Eskişehir

- Odunpazarı

- Markiz Ihlamurkent 162 Konuttan Oluşuyor
Markiz Ihlamurkent 162 Konuttan Oluşuyor
Eskişehir Odunpazarı'deki en yeni konut projeleri hakkında ve emlak sektöründeki son gelişmelere dair haberleri incelemek için tıklayınız.
Marşandiz Yapı tarafından Eskişehir Odunpazarı bölgesinde yükselen Markiz Ihlamurkent projesi toplamda 5 etapta 162 konuttan oluşuyor.
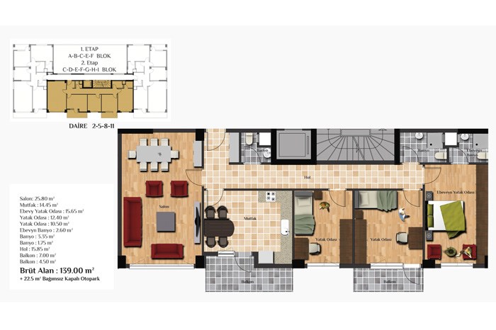
Eskişehir'in Odunpazarı bölgesinde Marşandiz Yapı tarafından 20 dönümlük arazi üzerinde 162 konuttan oluşan Markiz Ihlamurkent projesinde büyüklükleri 100 ile 200 metrekare arasında değişen 2 oda 1 salon, 3 oda 1 salon ve 4 oda 1 salon konut tipi seçenekleri sunuluyor.
Markiz Ihlamurkent PROJE DETAYLARI
- Toplam 5 etapta 600 daireden oluşan Markiz Ihlamurkent projesinde ilk iki etabındaki 162 konut satışa sunuldu.
- Kazan-kazan mantığı ile yatırımcılar düşünülerek hareket edilen Markiz Ihlamurkent projesi sosyal alanları ve inşaat kalitesiyle Eskişehir'de ilklere imza atmayı hedefliyor.
- Toplam 162 daireden oluşan Markiz Ihlamurkent projesi 5 etaplı olarak planlanıyor.
KİRALAR 600 LİRADAN BAŞLIYOR
En düşük ve en yüksek konut fiyatlarının 139 bin lira ile 275 bin lira arasında değiştiği Markiz Ihlamurkent projesinde daireler banka kredisine uygun durumda. Projeye komşu olan Eskişehir Ihlamurkent'te 3 oda 1 salon daire kiraları 600 liradan başlıyor. Markiz Ihlamurkent'te de kiraların aşağı yukarı 600-650 liradan kiracı bulması bekleniyor. Projede anahtar teslim işlemlerine ise Aralık 2014 tarihinde başlanacak.
Markiz Ihlamurkent projesinde satışa sunulan dairelerin güncel fiyat listesi ise şöyle :
2 oda 1 salon daireler : 139 bin lira ile 159 bin lira arasında,
3 oda 1 salon daireler : 184 bin lira ile 189 bin lira arasında ve
4 oda 1 salon daireler : 260 bin lira ile 275 bin lira arasında değişen fiyatlarla alıcılarını bekliyor.
MARKİZ IHLAMURKENT PROJE BİLGİLERİ
Markiz Ihlamurkent Projesi İletişim Bilgileri :
Adres : Vadişehir Mah. Nilüfer Cad. Altınözü Sok. No:2/A Odunpazarı/Eskişehir
Telefon : 0222 219 04 04
Web : http://markizihlamurkent.com/
E-mail : info@markizihlamurkent.com
Markiz Ihlamurkent Projesi Fotoğrafları :
Markiz Ihlamurkent Sosyal İmkanları ve Proje Özellikleri
- Açık otopark
- Açık yüzme havuzu
- Çocuk oyun alanları
- Çocuk yüzme havuzu
- Güvenlik
- Kamelya
- Kameralı güvenlik
- Merkezi uydu sistemi
- Süs havuzu
- Yürüyüş parkuru
- Asansör
- Hidrofor
- Jeneratör
- Su Deposu
- Ankastre beyaz eşya
- Balkon
- Kombi
- Deprem yönetmeliğine uygun
- Yalıtım yönetmeliğine uygun
- Yapı denetimi yapılmış
- Zemin etüdü yapılmış
Markiz Ihlamurkent Projesi Plan ve Kroki Görselleri :
HABER İLE İLGİLİ YORUMLAR
henüz yorum yok
GÜNDEM HABERLERİ
Ege Yapı Kalitesi Şimdi de Beyoğlu’nda
Gayrimenkul sektöründe 20 yılı aşkın deneyimiyle dikkat çeken Ege Yapı, İstanbul’da tarih, kültür ve
03 April 2026
Luxera GYO’dan ev sahibi yapacak “Dört Dörtlük” kampanya
Luxera GYO, “Dört Dörtlük” kampanyasıyla Luxera Topkapı, Luxera Nevbahar Life, Luxera Nevbahar Suite
30 March 2026
Fırat Life Style’dan 990 Bin TL Net Fiyatıyla "Hemen Tapulu", “Erişilebilir Konut” Modeli
30 March 2026
26 March 2026
Katılımevim’i de çatısı altında bulunduran Pusula Holding’den Londra merkezli küresel adım













