
- İlginç Tasarımlar

- Modül Ev’in İnşa Süresi Sadece 1 Gün!
Modül Ev’in İnşa Süresi Sadece 1 Gün!
Steelife Modül Evler, sizi hayal ettiğiniz eve 1 günde kavuşturuyor. Nasıl mı? Cevabı bu haberde...
Steelife Modül Evler, sizi hayal ettiğiniz eve 1 günde kavuşturuyor. Nasıl mı? Cevabı bu haberde...
Düzenleyen: Tugay TOPÇU / Yeniemlak.com
Türkiye’nin ilk hafif çelik sistemle üretilen binasını kuran, depreme dayanıklı ve ekolojikyapılar üreten Steelife, Antalya’da gerçekleştirilen Yapex Yapı Fuarı’na yeni ürünü Modül Ev’i taşıdı.
Steelife, fuar için 52 metrekarelik Modül Ev'i sadece 4 saatte kurdu. Hafif çelik yapı üreticisi Steelife, bu yıl 22.si düzenlenen ve inovasyon, koruma, tasarım, teknik çözümler olmak üzere dört konuya odaklanan Yapex Yapı Fuarı'na sektöre kazandırdığı ilklerden biri olan Modül Ev ile katıldı.
Vefa bünyesinde yer alan markalardan biri olan Steelife, fuarda AR-GE ve ÜR-GE çalışmaları sonucunda geliştirilen taşınabilir, sökülebilir ve yeniden monte edilebilir Modül Ev ile dikkatleri üzerine çekti.
Modül Ev'in kalıcı yaşam alanlarının konfor ve estetiğine sahip olduğunu belirten Steelife Genel Müdürü Mimar Bülent Aydın, 12 farklı standart tipte üretilen evlerin istenirse kişiye özel olarak tasarlanabildiğini belirtti. Hızlı bir üretimin ardından kurulumun gerçekleştirildiğinin altını çizen Aydın,"İsteğinize göre projelendirilebilen Modül Evinize hayal bile edemeyeceğiniz zaman ve maliyet tasarruflarıyla sahip olabilirsiniz. Üretim süreci modeline göre 1 hafta ile 10 gün arasında sürüyor. Montaj süresi ise projeye göre 1 ila 5 gün arasında değişebiliyor. Fuarda sergilediğimiz 52 metrekarelik modül evin kurulumunu ise sadece 4 saatte tamamladık. Module R 07 isimli modül ev, alt katta bir oda, mutfak, banyo ve tuvalet, üst katta ise teras ile birlikte bir yatak odası, banyo ve tuvaletten oluşuyor" dedi.
SÖKÜLÜP TAŞINABİLİYOR
Modül Ev'in belirli bir süre kullanıldıktan sonra istendiğinde başka bir yere kamyon ya da TIR aracılığıyla rahatlıkla taşınıp yeniden kullanılabildiğine de işaret eden Bülent Aydın, Modül Ev'in sipariş üzerine üretildiğini ve yıllık kapasitelerinin 5 bin adet olduğunu söyledi. Üretimin bilgisayar kontrollü son teknolojiler kullanılarak çok hızlı yapıldığını yineleyen Aydın, Modül Ev'in üretiminin neredeyse tamamının fabrikada tamamlandığını kaydetti. Aydın, "Modül Ev, sunduğu yalıtım avantajı ve yüksek yangın dayanımı sayesinde farklı iklim koşullarında ve her türlü coğrafyada başta konut olmak üzere yurt ve otel amaçlı olarak da kullanılabiliyor" dedi.
Yeni nesil bir yaşam alanı olan Modül Ev'in hafif çelik konstrüksiyondan oluşan taşıyıcı sisteme sahip olduğunu kaydeden Aydın, her bir modülün, duvar, çatı ve tabanlarında uygulanan ısı ve ses izolasyonlarının üst seviyede olduğunu bildirdi. Modül Ev'de soğutma ihtiyacı için klimaların, ısıtma ihtiyacı içinse elektrikli radyatörlerin kullanıldığını söyleyen Aydın, "Her bir modülün kendine ait bir su ve elektrik tesisatı sistemi bulunuyor. Üst üste maksimum 3 modül kullanılabiliyor. Yatayda ise farklı birleşimler olabiliyor. Modüllerin kendi tabanı olduğundan zeminde her hangi bir betona ihtiyaç duyulmuyor. Zemine göre ayarlanabilir ayaklar kullanılabiliyor. Ayrıca modüllerde kullanılan standart tipteki banyo ve mutfak bölümleri de tasarımı belirleyen önemli bir unsur" diye konuştu.
HIZLI KURULUMU İLE OTEL YATIRIMCILARININ İLGİSİ ÇEKİYOR
Steelife, güvenli, kaliteli ve en önemlisi de hızlı inşa edilen bir sistem olarak öne çıkan hafif çelik yapı sistemi ile konut dışında otel, Hastane, okul gibi hizmet ve ticari binaları da yapabiliyor. Hızlı çözümleri ile özellikle otel yatırımcılarının da ilgisini çeken Steelife, Antalya'daki Vogue Otel'in 200 metrekare ile 704 metrekare arasında değişen 40 adet villa tipi süitini sadece 75 günde tamamlamıştı.
Steelife Genel Müdürü Bülent Aydın, estetik ve konforlu yaşam alanlarının oluşturulabildiği hafif çelik yapı sistemi ile binaların alternatifleri ile kıyaslanamayacak kadar kısa sürelerde inşa edilebildiğini vurguladı. Aydın, "Hafif çelik yapı sistemi özellikle inşaat sezonunun çok kısa olduğu bölgelerde güvenli, kaliteli ve en önemlisi de klasik yapı sistemlerine göre çok daha hızlı inşa edilebilen bir sistem olarak öne çıkıyor. Tüm süreçler iklim koşullarından bağımsız olarak yürütülebiliyor. Ağır kış koşullarında ya da yazın ortasında iklimden bağımsız olarak kurulumlar gerçekleştirilebiliyor" dedi.
İşte istediğiniz yere yaşam alanı kurabilmenizi sağlayan Madül Evlerin modelleri:
MODULE R 01
1 KAMYONLA TAŞINABİLİR
2 KİŞİLİK KONUT
ANTRE - 3,00 metrekare
SALON + MUTFAK - 6,60 metrekare
YATAK ODASI - 8,20 metrekare
BANYO - 2,40 metrekare
NET - 20,20 metrekare
BRÜT - 23,20 metrekare
Steelife Module R 01 Modeli Modül Evi Fotoğrafları:
MODULE R 02
1 TIRLA TAŞINABİLİR
2 KİŞİLİK KONUT
ANTRE - 5,10 metrekare
SALON - 6,90 metrekare
MUTFAK - 4,40 metrekare
YATAK ODASI - 8,20 metrekare
BANYO - 2,40 metrekare
NET - 27,00 metrekare
BRÜT - 30,90 metrekare
Steelife Module R 02 Modeli Modül Evi Fotoğrafları:
MODULE R 03
1 TIRLA TAŞINABİLİR
2 KİŞİLİK KONUT
ANTRE - 3,10 metrekare
SALON+MUTFAK - 6,60 metrekare
YATAK ODASI - 8,20 metrekare
BANYO - 2,40 metrekare
TERAS - 7,70 metrekare
NET - 28,00 metrekare
BRÜT - 30,90 metrekare
Steelife Module R 03 Modeli Modül Evi Fotoğrafları:
MODULE R 04
1 KAMYON ve 1 TIRLA TAŞINABİLİR
2 KİŞİLİK KONUT
ANTRE - 5,10 metrekare
SALON - 6,90 metrekare
MUTFAK - 4,40 metrekare
TERAS - 11,30 metrekare
YATAK ODASI - 8,20 metrekare
BANYO - 2,40 metrekare
NET - 38,30 metrekare
BRÜT - 42,20 metrekare
Steelife Module R 04 Modeli Modül Evi Fotoğrafları:
MODULE R 05
1 KAMYON ve 1 TIRLA TAŞINABİLİR
3 KİŞİLİK KONUT
HOL - 5,00 metrekare
SALON - 12,10 metrekare
MUTFAK - 4,40 metrekare
YATAK ODASI - 8,20 metrekare
YATAK ODASI - 6,80 metrekare
TERAS - 9,20 metrekare
BANYO - 2,40 metrekare
NET - 48,10 metrekare
BRÜT - 54,00 metrekare
Steelife Module R 05 Modeli Modül Evi Fotoğrafları:
MODULE R 06
2 TIRLA TAŞINABİLİR
4 KİŞİLİK KONUT
HOL - 5,00 metrekare
SALON - 13,20 metrekare
MUTFAK - 4,40 metrekare
YATAK ODASI - 6,80 metrekare
TERAS - 7,60 metrekare
YATAK ODASI - 5,80 metrekare
YATAK ODASI - 8,20 metrekare
BANYO - 2,40 metrekare
NET - 53,40 metrekare
BRÜT - 61,80 metrekare
Steelife Module R 06 Modeli Modül Evi Fotoğrafları:
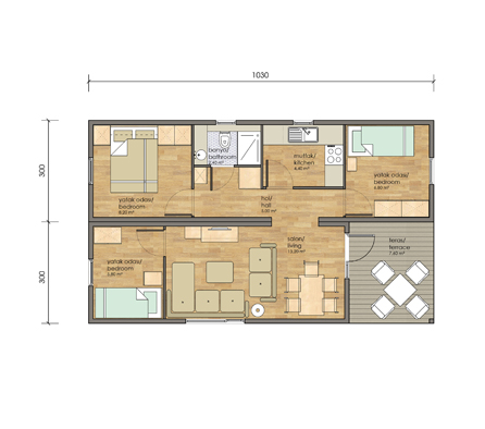
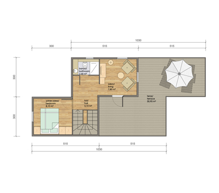
MODULE R 07
2 KAMYONLA TAŞINABİLİR
4 KİŞİLİK KONUT
ANTRE - 3,00 metrekare
SALON+MUTFAK - 6,60 metrekare
YATAK ODASI - 8,20 metrekare
BANYO - 2,40 metrekare
BANYO (1. KAT) - 2,40 metrekare
YATAK ODASI (1. KAT) - 13,30 metrekare
TERAS (1. KAT) - 13,60 metrekare
NET - 46,70 metrekare
BRÜT - 52,20 metrekare
Steelife Module R 07 Modeli Modül Evi Fotoğrafları:
MODULE R 08
2 TIRLA TAŞINABİLİR
3 KİŞİLİK KONUT
HOL - 3,50 metrekare
SALON - 28,70 metrekare
MUTFAK - 8,30 metrekare
YATAK ODASI - 5,40 metrekare
YATAK ODASI - 8,10 metrekare
BANYO - 2,40 metrekare
NET - 56,40 metrekare
BRÜT - 61,80 metrekare
Steelife Module R 08 Modeli Modül Evi Fotoğrafları:
MODULE R 09
1 KAMYON ve 2 TIRLA TAŞINABİLİR
4 KİŞİLİK KONUT
HOL - 3,00 metrekare
SALON - 28,70 metrekare
MUTFAK - 5,70 metrekare
YATAK ODASI - 8,10 metrekare
BANYO - 2,40 metrekare
YATAK ODASI - 8,10 metrekare
TERAS - 8,40 metrekare
NET - 64,40 metrekare
BRÜT - 70,20 metrekare
Steelife Module R 09 Modeli Modül Evi Fotoğrafları:
MODULE R 10
1 KAMYON ve 2 TIRLA TAŞINABİLİR
5 KİŞİLİK KONUT
HOL - 3,00 metrekare
SALON+MUTFAK - 28,70 metrekare
YATAK ODASI - 4,50 metrekare
YATAK ODASI - 8,10 metrekare
BANYO - 2,40 metrekare
YATAK ODASI - 8,10 metrekare
TERAS - 8,40 metrekare
NET - 63,20 metrekare
BRÜT - 70,20 metrekare
Steelife Module R 10 Modeli Modül Evi Fotoğrafları:
MODULE R 11
3 TIRLA TAŞINABİLİR
6 KİŞİLİK KONUT
HOL - 9,00 metrekare
SALON+MUTFAK - 29,40 metrekare
YATAK ODASI - 7,80 metrekare
YATAK ODASI - 7,80 metrekare
BANYO - 2,40 metrekare
YATAK ODASI (1. KAT) - 21,60 metrekare
BANYO (1. KAT) - 2,40 metrekare
TERAS (1. KAT) - 30,90 metrekare
NET - 111,30 metrekare
BRÜT - 123,60 metrekare
Steelife Module R 11 Modeli Modül Evi Fotoğrafları:
MODULE R 12
3 TIRLA TAŞINABİLİR
5 KİŞİLİK KONUT
HOL - 8,80 metrekare
SALON - 23,20 metrekare
MUTFAK - 8,30 mmetrekare
YATAK ODASI - 5,40 metrekare
BANYO - 2,40 metrekare
YATAK ODASI - 8,10 metrekare
TERAS (1. KAT) - 30,90 metrekare
SALON (1. KAT) - 7,80 metrekare
YATAK ODASI (1. KAT) - 8,10 metrekare
BANYO (1. KAT) - 2,40 metrekare
HOL (1. KAT) - 30,90 metrekare
NET - 110,50 metrekare
BRÜT - 123,60 metrekare
Steelife Module R 12 Modeli Modül Evi Fotoğrafları:
HABER İLE İLGİLİ YORUMLAR
henüz yorum yok
GÜNDEM HABERLERİ
İlginç Tasarımlı Dağ Evi
Brutalist tarzda inşa edilen bu muhteşem ev adını da temsil ettiği tarzdan alıyor: Casa Brutale
09 July 2015
Muhteşem Konteyner Ev
Dünyanın en ilginç tasarımlarından biri olan konteyner ev ABD'nin Teksas eyaletinde bulunuyor. İşte
















